目前煤炭、金屬、非金屬礦山開采分為地面開采和井下開采兩種,且井下開采占絕大占比。將井下物料通過豎井提升到地面這個工藝,是井下開采工藝中一個重要環節。下面鶴壁市煤化機械有限責任公司,為您分析講解目前國內井下物料提升環節的工藝、存在的問題和新的工藝技術。
目前國內井下物料提升工藝為:
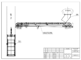
1.物料首先進入井下緩沖儲存倉——2.通過電液漏斗閘門、給料機、帶式給料機等放料到下部轉運皮帶——3.皮帶將物料轉運至提升箕斗——4.提升箕斗將物料送至地面緩沖倉。
如下圖:

在上面整個工藝中,存在以下幾點問題:
1.電液閘門經常出現大塊卡料關閉不嚴情況,發生溜料;
2.振動給料機在啟動、停機過程中,有共振發生,且不能瞬時停機;
3.帶式給料機抗砸耐沖擊效果不好,維修量大,不適合在井下使用。
4.振動給料機、帶式給料機、下部皮帶,隨著箕斗頻繁啟動,容易“燒電機”。
5.帶式給料機密封性不好,易漏灰灑料。讓本就惡劣的井下環境,雪上加霜!

XZG型雙質體振動給料機(全吊式)
超大計量帶式給料機
XZG型振動放礦機(全座式鋼彈簧)
SFZC雙質體溜井振動放礦機